Доставка ЖБИ по Шахтам
и Ростовской области
Ежедневно 9:00-20:00
Ежедневно 9:00-20:00

«Монолит ЖБИ78»

Шахты, Путиловский переулок, 1В

пн-вс 9.00-20.00

Отдел продаж:

+7 (863) 308-17-75

Электронная почта:

info@gbi78.ru

круглосуточно

Прайс-лист:

Фундамент ФМ-5 дорожных знаков

Цена: 57 960 руб / шт
В наличии 52 шт
Макс. производ-во 200 шт./сутки
Работаем по постоплате
Узнать срок поставки

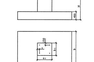
Монолитные железобетонные фундаменты ФМ-5 для опор рамных металлических при установке дорожных знаков над проезжей частью изготавливаются из бетона класса В15, морозостойкостью F100.

Характеристики Фундамент ФМ-5 дорожных знаков:

Вид изделия:

Производитель: Монолит ЖБИ78
Ширина, мм 1800
Длина, мм 2500
Высота, мм 1500
Вес, т 6.53
ГОСТ/ТУ 3.503.9-80 вып.2
Маркировка ФМ5
Марка бетона B15
Объем, м3 2.61
Морозостойкость F100

Стоимость доставки

Способ доставки Макс. длина груза, м Стоимость доставки по Шахтам и ЛО
Машина до 3,5 тн до 30 м3 6 от 2 200 руб
Машина до 5 тн до 30 м3 6 от 3 500 руб
Машина до 10 тн до 50 м3 8 от 6 200 руб
Машина до 20 тн до 80 м3 8 от 9 600 руб
Манипулятор до 5 тн 5 от 4 700 руб
Манипулятор до 10 тн 10 от 8 600 руб
Манипулятор до 20 тн 14 от 16 900 руб
Акция - доставка манипулятором 20 тн 9 500 руб. в районе 30 км от КАД
Сертификаты качества
НАШИ ПРЕИМУЩЕСТВА
Всегда в наличии на складах более 400 единиц товара
Быстрое производство: 4 завода жби в Шахтах и Ростовской области
Скидки юр.лицам на заказ от 200 000 руб.
Недорогая доставка: у нас 5 Scania с манипулятором. Даем цены на доставку ниже рынка!

Фундамент ФМ5 используется для установки дорожных знаков, стоек и опор. Изготавливается из железобетона, обеспечивая высокую прочность и долговечность. Конструкция устойчива к ветровым нагрузкам, вибрациям от транспорта и другим внешним факторам, повышая безопасность и надежность установленных объектов. Фундамент подходит для районов с сейсмичностью до 9 баллов (шкала Рихтера) и ветровыми нагрузками классов Ia-IV.

Установите готовые блоки фундамента ФМ5 на основание из утрамбованного щебня и песка толщиной минимум 300 мм. Основание должно быть расположено так, чтобы фундамент был заглублен минимум на половину своей высоты.

У нас вы можете купить железобетонный фундамент ФМ5 без посредников — по цене от производителя.

 

Ассортимент жб изделий завода «Монолит» насчитывает более 10000 наименований, в продаже присутствует Фундамент ФМ-5 дорожных знаков с типовыми размерами мм. Регламентирующим нормативом для продукции этого вида является ГОСТ, в соответствии с которым изделие обладает массой в кг. Продукция всегда есть в наличии, цены указаны без учёта доставки. Актуальную стоимость Фундамент ФМ-5 дорожных знаков вы можете запросить у менеджера компании по телефону +7 (812) 309-71-78, отправив заявку с сайта или электронное письмо на адрес monolit@gbi78.ru.


Рекомендуем также:
Собственное производство
Наши объекты

Объект: Западный скоростной диаметр (ЗСД)

Местоположение: Шахты

Год строительства: 2016

Описание: Поставка железобетонных балок, плит и элементов опор для строительства западного скоростного диаметра. Продукция использовалась для возведения мостовых сооружений и эстакад.

Объект: Стадион "Газпром Арена"

Местоположение: Шахты

Год строительства: 2017

Описание: Поставка железобетонных конструкций для строительства трибун, перегородок и перекрытий стадиона. Продукция использовалась для создания несущих и внутренних конструкций.

Объект: Мост через реку Охта

Местоположение: Шахты

Год строительства: 2019

Описание: Поставка железобетонных балок и элементов опор для строительства моста. Продукция использовалась для возведения опор и пролётных строений.

Видеоэкскурсия по заводу Монолит-ЖБИ:

Оплата и доставка

Вы можете оплатить свой заказ тремя способами:

  • Переводом на расчётный счёт в банке
  • Наличными в офисе
  • Картой Visa или MasterCard

Доставка осуществляется по Шахтам и Ростовской области. От габаритов груза и его веса будет зависеть вид транспорта, обычно выбор делается между бортовыми автомобилями, грузовиком с кузовом 6 метров или шаландой длиной 12 м. По желанию заказчика возможна аренда манипулятора.

Схема работы с нами
1
Заявка с сайта или по телефону

Заявка с сайта
или по телефону

2
Консультация с менеджером

Консультация
с менеджером

3
Согласование сроков и стоимости

Согласование
сроков и стоимости

4
Поставка ЖБИ

Поставка ЖБИ

5
Оплата

Оплата

Наши преимущества
Опытные квалифицированные
			сотрудники

Опытные квалифицированные сотрудники

Продукция соответствует ГОСТ

Продукция соответствует ГОСТ

Ассортимент из более 10.000 изделий

Ассортимент из
более 10.000 изделий

Полный пакет документов

Полный пакет документов

Быстрая доставка по Шахтам и Ростовской области

Быстрая доставка
по Шахтыу и Ростовской области

Оставить отзыв
Наш офис

Нет времени искать нужный товар?
Получите консультацию по телефону!

Видеообращение генерального директора
Наши клиенты
ЦДС
ЛенСтройТрест
ОтделСтрой
ПИК
РосСтройИнвест
SetlCity

Наши партнеры
ЕвроЦементГрупп
БалтЩебень
Петросталь

Расположение офиса: